 
			 
				Via Antonio Pracanica - Appartamento con terrazzo.
Via Antonio Pracanica, poco distante da Piazza San Vincenzo e dalla Via Garibaldi, in zona servita ma molto tranquilla e distante dal traffico urbano, appartamento con terrazzo di proprietà.
Lo stabile è stato oggetto di interventi di manutenzione nel 2023 e si presenta curato, non è presente l'ascensore.
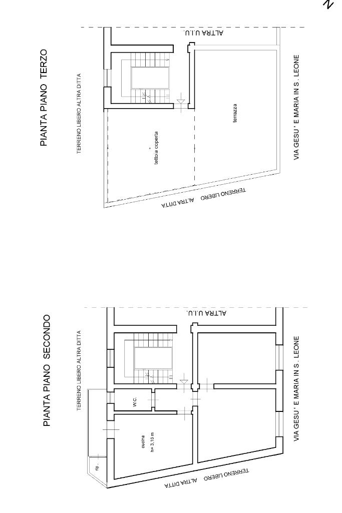
La casa si trova al secondo ed ultimo piano e si compone di soggiorno, camera da letto, bagno e cucina abitabile servita da balcone. La terrazza sovrastante è di proprietà esclusiva. Internamente l'immobile necessita di lavori di ristrutturazione ma gli infissi in tutti gli ambienti sono già a taglio termico di ultima generazione.
Vuoi ricevere maggiori informazioni e fissare un appuntamento? Contatta la nostra Agenzia Immobiliare al numero 090.9438990 oppure manda un messaggio Whatsapp al numero 350.1668299.
La nostra agenzia si occupa di immobili in vendita o in locazione nelle seguenti zone di Messina: Via Garibaldi, Municipio, Corso Cavour, Boccetta, Torrente Trapani, Viale Principe Umberto e Regina Margherita. Il nostro franchising, su richiesta, mette a disposizione dei propri clienti un consulente che si occupa della mediazione creditizia e assicurativa. Contattaci se vuoi ricevere una consulenza gratuita e per sapere quale sia la scelta più adatta alle tue esigenze.
 Immobile valutato con T·Valuta
Immobile valutato con T·Valuta
								Ti interessa visionare l'immobile?