Trilocale in vendita

Messina, Viale Principe Umberto - Principe Umberto
€ 82.000
3 locali 3 locali
69 Mq 69 Mq
1 bagno 1 bagno

Trilocale in vendita

Messina, Viale Principe Umberto - Principe Umberto

Descrizione annuncio

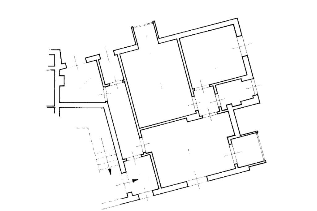
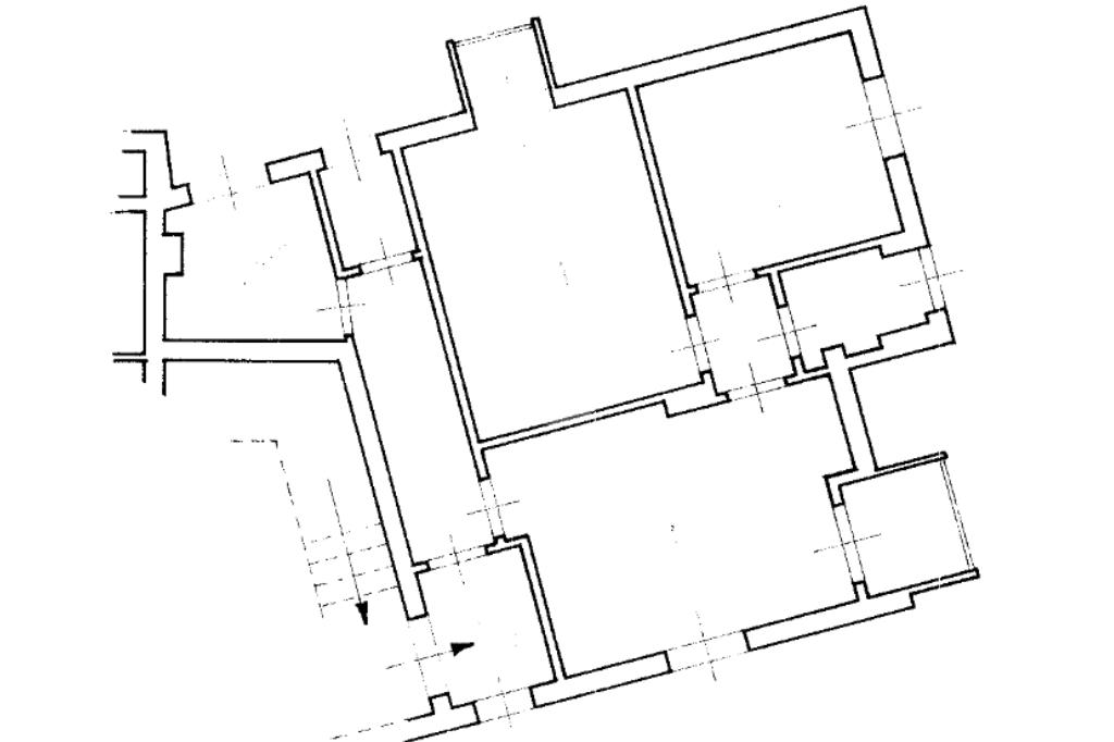
Viale Principe Umberto - Trivani ristrutturato, ultimo piano.

Viale Principe Umberto, nelle vicinanze dell'arco di Cristo Re, in zona servita da attività commerciali di prima necessità e adiacente lo svincolo autostradale di Boccetta che consente agevolmente gli spostamenti in auto.

L'appartamento si trova al terzo ed ultimo piano di un palazzo NON FORNITO DI ASCENSORE; da poco sono stati avviati i lavori di rifacimento delle facciate. Internamente si presenta ristrutturato e vi è la presenza di infissi a taglio termico, impianto di riscaldamento autonomo e di climatizzazione. Si compone di ingresso su zona giorno con balcone prospicente la principe Umberto, due camere da letto, cucina, bagno e ripostiglio.

Come pertinenza dell'immobile, vi è un posto auto scoperto ed assegnato nel cortile condominiale.

Vuoi ricevere maggiori informazioni e fissare un appuntamento? Contatta la nostra Agenzia Immobiliare al numero 090.9438990 oppure manda un messaggio Whatsapp al numero 350.1668299.

La nostra agenzia si occupa di immobili in vendita o in locazione nelle seguenti zone di Messina: Via Garibaldi, Municipio, Corso Cavour, Boccetta, Torrente Trapani, Viale Principe Umberto e Regina Margherita. Il nostro franchising, su richiesta, mette a disposizione dei propri clienti un consulente che si occupa della mediazione creditizia e assicurativa. Contattaci se vuoi ricevere una consulenza gratuita e per sapere quale sia la scelta più adatta alle tue esigenze.

Mostra tutto

Nelle vicinanze

Trasporto pubblico Trasporto pubblico
Messina Marittima
Messina Marittima
1,7 Km
stazione di Messina Centrale
stazione di Messina Centrale
1,8 Km
Canottieri / Boccetta
Canottieri / Boccetta
720 m
Municipio
Municipio
820 m
Trasporto pubblico
20 m
Ricariche auto elettriche Ricariche auto elettriche
EnelX EVAD Messina Gagini
170 m
Messina Garibaldi | EnelX
840 m
Messina Masuccio | EnelX
940 m
Messina Cavallotti | EnelX
1,4 Km
Messina Imbarco traghetti | EnelX
1,6 Km
Scuole Scuole
Scuola primaria "Buon Pastore - Cristo Re"
230 m
Liceo Scientifico Statale "Archimede"
360 m
Scuola secondaria di primo grado "Verona Trento"
430 m
Liceo classico "Giuseppe La Farina"
460 m
Liceo scientifico "Giuseppe Seguenza"
550 m
Farmacia Farmacia
Farmacia Boccetta
90 m
Seguenza
570 m
Ammendolia
610 m
Crimi
700 m
Farmacia Madonna della Salute
720 m
Ospedali Ospedali
Casa di cura Cristo Re
160 m
COT
960 m
Azienda Ospedale Piemonte
1,8 Km
IRCSS Centro Neurolesi Bonino - Pulejo
2,8 Km
Supermercati Supermercati
Supermercati
670 m
Tuodí
940 m
ARD
1,3 Km
Lekkerland
1,4 Km
Eurospar
1,6 Km
Negozi Negozi
Astone
740 m
Nodi & Colletti
1,2 Km
Asian Bazaar
1,2 Km
Asian Market
1,3 Km
Motostore Wear
1,3 Km
Bar Bar
Love's Sushi Bar
980 m
Costa
1,2 Km
Bar Noviziato
1,2 Km
7 Veli Caffè
1,3 Km
Ritrovo Centonze
1,3 Km
Ristoranti Ristoranti
Duca di Windsor
190 m
Ritrovo Famulari
280 m
Trattoria Mokarta
510 m
Mi Sushi
560 m
Shanghai 2
680 m
Mostra tutto

Caratteristiche

Rif.:
61172975
Piano:
3 di 3 (ultimo Piano)
Posti auto:
1
Balconi:
1
Camere da letto:
2
Arredamento:
Assente
Mostra tutto
Prezzo Prezzo
€ 82.000
Rata mutuo Rata mutuo
€ 390 / mese
Spese annue Spese annue
€ 350
Proponi il tuo prezzoProponi il tuo prezzo

Altre caratteristiche

Classe Energetica

E
E
E
E
E
E
E
E
E
EP globale non rinnovabile:
80.00 kW h/m² anno
EP globale rinnovabile:
80.00 kW h/m² anno
EP invernale del fabbricato:
EP estiva del fabbricato:
Anno di costruzione:
1970
Riscaldamento:
Autonomo
Tipo impianto:
A radiatori
Tipo alimentazione:
Metano

Ti interessa visionare l'immobile?

Fissa un appuntamento  Fissa un appuntamento

Richiedi informazioni

Clicca su Leggi per aprire l'informativa
* Questi campi sono obbligatori

Calcola il tuo mutuo

Semplice e senza impegno
Anticipo

( % )
Mutuo

( % )

pochi semplici passi

inserisci i tuoi dati
Questionario completato
Grazie per aver richiesto un appuntamento senza impegno con un nostro Consulente del Credito e Assicurativo.

Hai inserito correttamente tutti i dati necessari e a breve riceverai una e-mail con un link da convalidare per inviare i tuoi dati.
Affiliato
Micalizzi Cristian D.I.
Via G. Garibaldi, 181 98122 Messina (ME)

Il nostro staff


  • Maria Chiara Occhiuto
    Responsabile

  • Cristian Micalizzi
    Affiliato
Via G. Garibaldi, 181 98122 Messina (ME)
Zona: Messina Garibaldi
Mostra su mappa
Affiliato
Micalizzi Cristian D.I.
Via G. Garibaldi, 181 98122 Messina (ME)

2026 Tecnocasa Franchising S.p.A. - P. IVA 08365160152 - Via Monte Bianco 60/A 20089 Rozzano (MI). Ogni agenzia ha un proprio titolare ed è autonoma. Privacy policy | Policy utilizzo | Cookie policy